26㎡简约loft小户型装修, 头一次见地台沙发, 空中浴缸设计
近年来,小户型公寓是作为年轻人安家置业的过渡性产品,在一二线城市,loft已经演变成一种生活方式或时尚潮流。

今天分享的是一间面积为26㎡loft小公寓住宅设计,设计师将房屋进行了多维度的设计,充分利用空间打造一个理想住宅。
【 面积:26㎡ 户型:loft 风格:现代简约风 】

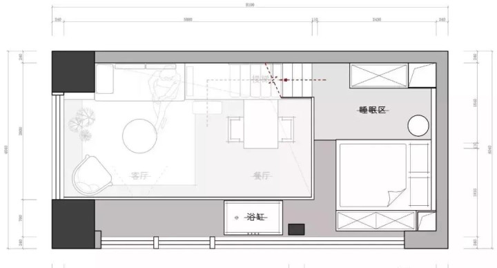
▲一层平面布局图

▲二层平面布局图

▲阁楼错层结构演示图


玄关鞋柜采用悬浮设计,多个抽屉的设计方便分类存放各类物品。玄关处还有一个落地窗,阳光穿过百叶窗照射进来,为室内增加了采光。


玄关左侧是卫生间空间,采用洗漱台+马桶+淋浴区标准三件套,采用墨绿色的墙砖,复古又精致。

客厅没有选择常规沙发,而是将沙发、地台、收纳、楼梯进行结合,让空间更整体,也增加了收纳。

悬浮楼梯+悬浮地台的设计让楼梯变得更轻巧,整个空间变得更加轻盈通透。几组大抽屉满足日常收纳需求,悬浮地台的设计还能让抽屉无拉手。

客厅没有做任何过多的装饰,保证空间的干净,同时也不会觉得拥挤。


电视墙右侧打造了一个开放式书柜,邻窗搭配一把躺椅,打造出一个舒适的阅读区。电视机顶盒等设备都隐藏在书柜内部,让电视墙更加整洁。

阳台作为生活阳台,由于狭长的晾晒区使用不便,采用可推拉晾衣杆解决了晾晒难这个问题。

餐厅位置位于楼梯下方,白色的悬浮楼梯搭配吊绳,无意间也成为餐厅最简洁的背景装饰。

一字型的厨房,台面可以满足基础的洗、切、炒动线,水槽上方的凹槽,可放置微波炉等小电器以及调味品、餐具等,解放厨房台面。

厨房的另一侧放置了冰箱+电器层板+小推车,弥补厨房电器与日常杂物的收纳。

小面积的阁楼是睡眠区,采用错层设计,使门厅区域获得更高的层高。

床下安装了感应灯,晚上起夜方便使用。

床头设计了隐藏收纳+桌面的设计,满足睡前护肤等需求。


床尾拐进去的角落就是空中浴缸了。浴缸进出虽然不是那么方便,但由于使用频率低,所以没必要占用卫生间的空间,这里有开阔的视野,在这里泡澡,心情也会变得更好。